
Об идее создания в новой части города бассейна мы писали не раз. Однако, до сей поры, это были лишь рассуждения. Всё изменилось 27 октября, когда основатель и директор местного интернет-провайдера Powernet Алексей Карпов написал на своей странице во ВКонтакте, что проект строительства пятидесятиметрового открытого бассейна в Волжском жив и развивается. Мы встретились с ним, и попросили рассказать о происходящем подробнее.

Найти подходящий пустырь
Идея строительства бассейна возникла у Алексея Карпова год назад.

— Всё началось с того, что я увлёкся плаванием. – рассказал нам предприниматель. – На это меня вдохновил мой сын, и я стал заниматься. Мне очень понравилось в волгоградской «Искре», я оценил бассейн ЦСКА в Астрахани и в московской «Чайке». Открытый бассейн – это совсем другие ощущения! Он также отличается от закрытого, как бег на улице от бега на дорожке. И я загорелся идеей строительства в городе 50-метрового открытого бассейна. Круглогодичного, подогреваемого, самого большого в области и, наверное, даже в ЮФО. Я стал об этом думать, искать партнёров…
Предварительно инициативная группа оповестила о своих планах администрацию. Глава города проект поддержал.
— Очень хотелось бы, чтобы наше детище оправдало высокое доверие горожан и гармонично вписалось в архитектурную концепцию города, — продолжает наш собеседник. – В январе 2025 года мы зарегистрировали фирму «Бассейн «Солнечный», в марте подали заявку на землю. И, пока ждали участка, сделали два эскизных проекта. Черновых. Детализацию без земли не проработать: непонятно куда подключать коммуникации, какие грунты, какая роза ветров… А в середине августа нам выделили землю.
Изначально бассейновый комплекс «Солнечный» хотели разместить в одноимённом парке за ФОКом «Русь».
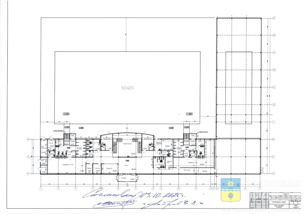
— В силу отсутствия опыта нам поначалу казалось, что мы там уместимся, — вспоминает Алексей с улыбкой. – Но, посоветовавшись с председателем земельного комитета Александрой Викторовной Поповой и главным архитектором Ильёй Анатольевичем Поступаевым, мы поняли, что не пройдём по нормам. Площадь застройки должна быть не больше 40% участка. Остальное — озеленение, парковка и благоустройство. Начали искать другие варианты. И нашли место между микрорайонами 32а и 38, на ул. Карбышева, 159. Вдоль границ этого участка как раз сейчас тянут коммуникации ХВС и водоотведения. Сюда и будем подключаться.

«Первую очередь планируем завершить в 2027-м»
Чтобы реализовать объекты социального значения такого уровня, есть два пути. Первый – пройти через процедуру торгов, объявленных муниципалитетом. Второй — по согласованию с администрацией региона получить участок земли на строго определённое время под строительство конкретного объекта.

— Первый вариант — не самый лучший, — размышляет Алексей. — В городе уже случалось, что коммерсанты заявляли спортивные объекты, а, уже в процессе, меняли назначение земель и возводили торговые центры. Мы выбрали второй путь. Землю нам дали до 31 декабря 2029 года. К этому времени работы должны быть завершены. Но мы планируем управиться быстрее, года за полтора. Если мы успеем получить разрешение на строительство, то работы начнутся в марте 2026-го, а в 2027, полагаю, мы завершим первую очередь, куда войдёт 50-метровый открытый бассейн на 10 дорожек и здание к нему с гардеробом, саунами, раздевалками, тренерскими, ресепшеном и двухэтажным кафе с антресолью и лестницей с видом на бассейн.

После этого запланирована вторая очередь – крытый 25-метровый бассейн, корпус которого будет примыкать к административному зданию первой очереди.
— Спешить со второй очередью мы не будем, — продолжает Алексей. — Нужно понять настроение горожан. Вдруг им понравится именно открытый вариант. И тогда вторую очередь мы сделаем тоже открытой. Нужно понаблюдать. Нам вообще очень важны комментарии и предложения жителей города. Они будут влиять на наши решения. Мы заинтересованы, чтобы проект был привлекателен. Волжане могут оставлять их в ВК-группе, которая так и называется «Бассейн Солнечный в г. Волжский».

После получения земельного участка стартовала детальная проработка проекта.
— Территория у нас достаточно большая, 2 с лишним гектара, — подхватил руководитель проекта Валерий Андреев. – Места предостаточно! В декабре 2025-го мы планируем завершить проектирование, в январе-феврале 2026-го — пройти экспертизу, а в марте 2026-го — получить разрешение на строительство и сразу же приступить. 31 октября мы как раз получили результаты геодезических исследований. Сложностей, вроде, никаких. Всё хорошо: с грунтами, поверхностью, экологией, с гидрогеологией… Все четыре обязательных раздела для прохождения экспертизы мы получили и передали проектировщикам, которые будут разбираться с бетоном, фундаментом, посадкой здания и – всеми остальными нюансами.

Очистка, идеальная для аллергиков
Параллельно ведётся и выбор подрядчика.
— Естественно, это будет организация, которая будет обладать всеми необходимыми разрешениями, — констатирует Алексей. — Постараемся найти местную компанию, зарегистрированную в наших налоговых органах, чтобы средства оставались в городской казне. Претенденты уже есть.
Как оказалось, эксплуатационные расходы на открытый бассейн существенно выше, чем на закрытый.

— Его нужно хорошенько обогревать, потому что он всё излучает в небо, — комментирует Валерий Андреев. — Необходима серьёзная многоступенчатая система фильтрации, через которую вода будет проходить 6 раз в сутки. Ведь вода циркулирует в закрытом контуре, с частичной подпиткой и сливом. Сэкономить тут можно только на строительстве здания и вентиляции, которая на открытом воздухе не нужна.

Фишкой бассейна станет прогрессивная система водоподготовки с использованием хлоргенераторов.
— По классике, в бассейны обычно льют хлорку, — продолжает Валерий. — Этого требует СанПиН. Но сейчас появились современные установки, добывающие хлор путём электролиза. Их используют для обеззараживания питьевой воды, воды в плавательных бассейнах и даже морской воды. Они позволяют в любом месте и в любом количестве синтезировать из воды и поваренной соли высокоэффективный и безопасный раствор оксидантов.

Цены инициаторы обещают сделать демократичными и доступными, несмотря на то что бассейн будет намного крупнее всех имеющихся в городе.
— Мы будем приучать жителей города к плаванию, — завершает Алексей. — Потому что желающих много. А в транспортной доступности, получается, только один бассейн – на центральном стадионе. Так что мы объект точно построим. Не сомневайтесь. И, уверяю вас, в долгострой это не превратится.

Читайте «Волжскую правду», где вам удобно: Новости, Одноклассники, ВКонтакте, Telegram, Дзен. Есть тема для новости? Присылайте информацию на почту vlzpravda@mail.ru

















